Architecture that combines tradition and modern design
Vita Nova Classic houses bring the classic values of the Slovenian countryside to modern architecture. Visible wooden construction, traditional eaves and hand-finished wood in the interior create a warm, homely ambience with natural materials that ensure durability and aesthetics. It offers adaptable solutions that are suitable for both rural and urban environments.
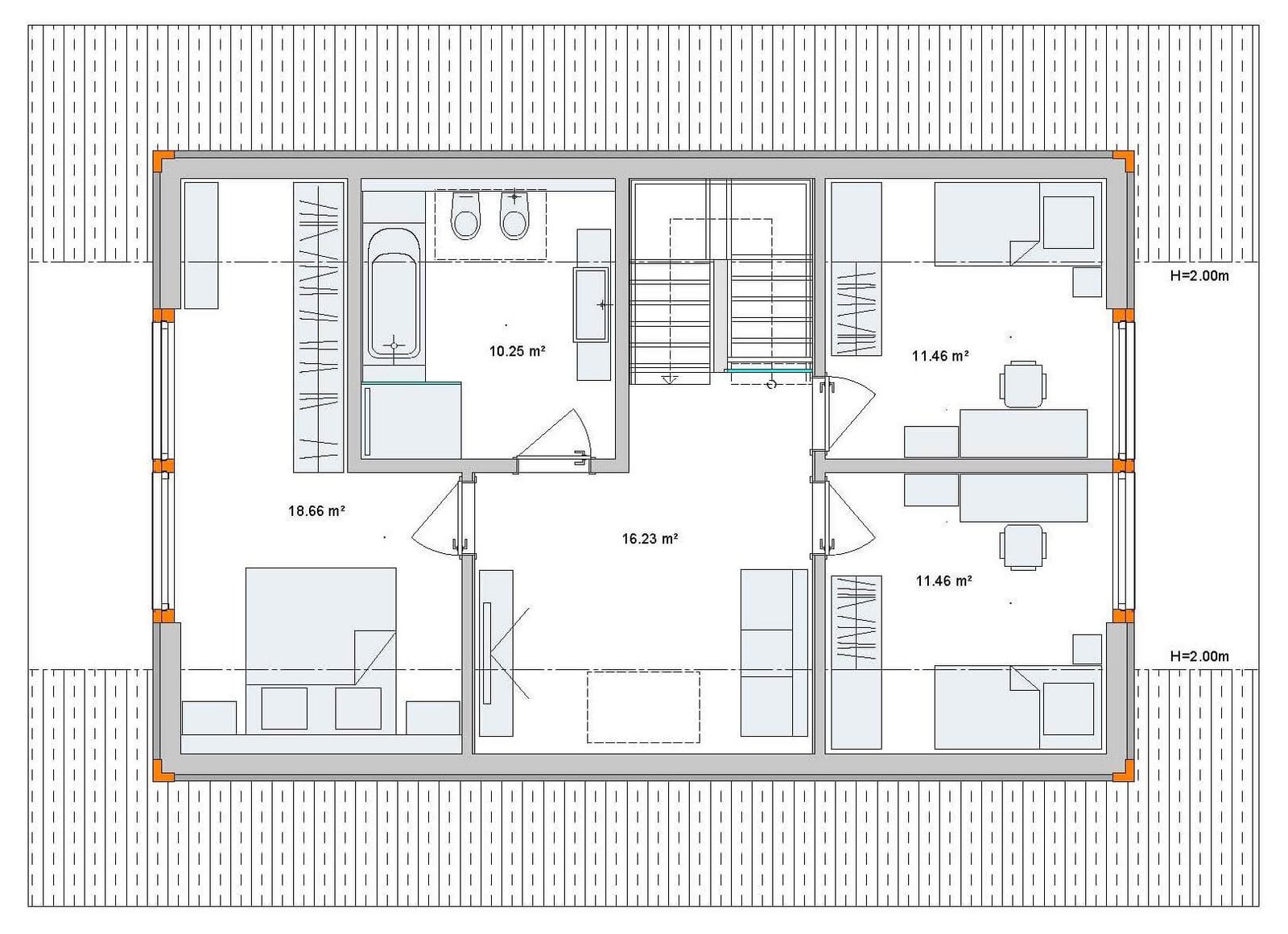
The ground floor Vita Nova Classic combines the character of Slovenian architecture with a visible skeleton and modern elements - all on one floor. Without steps, it offers easy movement, a clear design and comfort that adapts to different living situations. It is suitable for families, couples or as a holiday home in nature.