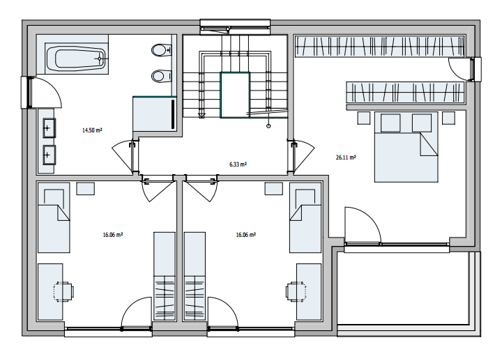
Architectural family
Vita Nova Modern

A glass house for everyone and every environment

Vita Nova

Modern

Vita Nova Modern is intended for all those who want a modern look without a visible wooden structure and complete freedom in architectural design. The Vita Nova Alu system enables high energy efficiency and flexibility, opening up the possibility of building almost zero-energy or self-sufficient houses. Due to the hidden wooden structure, the house retains the advantages of skeletal technology, while giving it a modern and elegant appearance.

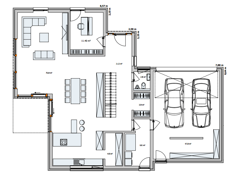
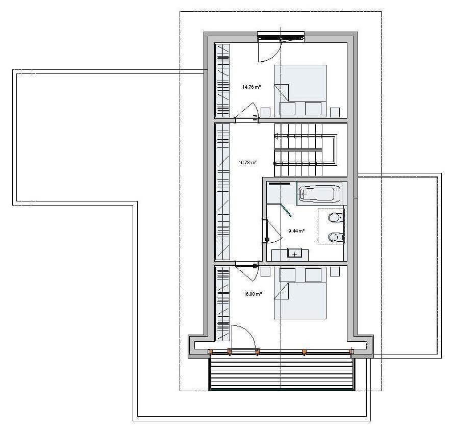
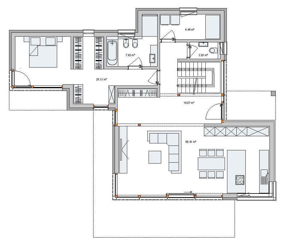
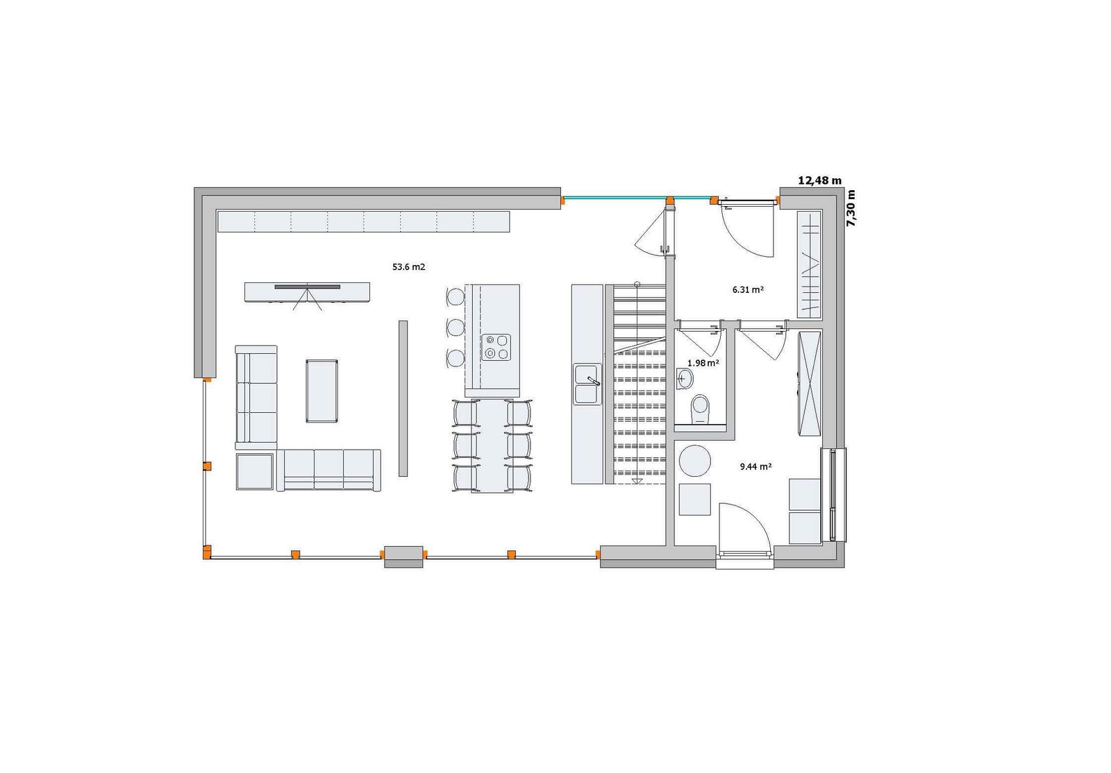
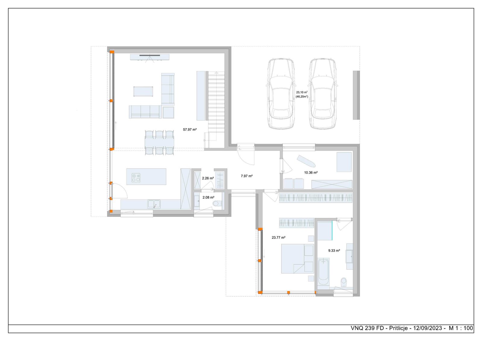
VITA NOVA Modern 140

VNM-140-_-Tloris-P-A4_1_75

Ground floor

Vita Nova Modern

The ground floor Vita Nova Modern brings all the advantages of this architectural line in a single-storey design. Without steps, it allows easy movement and comfortable living in all stages of life. The Vita Nova Alu system ensures excellent energy efficiency and a modern look with aluminum exterior protection. Bright and open spaces can be completely adapted to the wishes of the users and create a home that grows with the family.

Architectural features

Vita Nove Modern

Hidden wooden structure

In Vita Nova Modern houses, the wooden supporting structure is not visible from the outside. This allows for cleaner and straighter lines, creating a distinctly modern look and clearly distinguishing this architectural family from other Vita Nova solutions.

Energy efficiency and self-sufficiency

The Vita Nova Modern system offers high thermal envelope flexibility and allows the integration of advanced technologies. In this way, it is possible to design a house as zero-energy or completely self-sufficient, which goes beyond the mere aesthetic aspect and combines architecture with advanced energy efficiency.

Eaves-free construction

A special feature of this architectural family is the possibility of implementing gable roofs without eaves. This achieves a clean, minimalist look that can blend equally well with urban environments or open rural landscapes.

CTA cover